Minimum Door Width For Bathroom

The size for a separate toilet compartment should be at least 36x66 inches with a swing out or pocket door.

Minimum door width for bathroom. As you enter the bathroom the door needs to be able to swing its width into the room without. See more bathrooms with drop in tubs. The height for all interior doors must be minimum 2040mm and the standard width for interior doors is 620 720 770 820 870 or 920 mm.

The clear opening of a doorway should be at least 860mm wide. Interior doors are smaller than exterior ones. Widths and heights in bathrooms depend on the individual but most pre built medicine cabinets are about 560 millimetres wide and 750 millimetres tall.

If the existing structure doesn t allow for a change to the opening then a minimum 610mm door is allowable don t forget you need to be able to get any bathroom items including a bath through it. The depth of vanities or medicine cabinets needs to be 100 to 130 millimetres overall and 90 to 110 millimetres on the interior shelves to suit most people. Since 34 is not a standard door width most designers spec a 36 door which is not usually a special order.

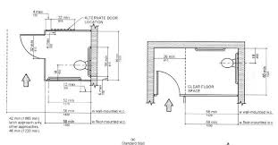
Yes an ada bathroom should be 36. T he are no minimum or maximum door widths for class 1a buildings houses including bathrooms. When planning renovation or building a new door have this measures in mind.

To meet ada universal design standards plan on 34 of clear opening or a 36 door. The minimum size for a separate toilet compartment is 30x60 inches. Average width of a bathroom entry door is 32 inches.

Is there a code for minimum width of interior door in public building. Code for the doorway opening to the bathroom is 32 inches with 34 inches being the recommendation. The standard thickness for interior doors is 40 mm.

If you re working with a really small space you could bring the door width down to 28 inches or 71cm even down to 24 inches or 61cm as an absolute minimum note small doors are should only be used for bathrooms closets and utility rooms. For 32 of clear width the door width from jamb to jamb should be 34. The only consideration for bathrooms that contain closet pans is that there is adequate space from the doorway to the closet pan to allow the door to be opened in case of an emergency to remove an occupant.

Source : pinterest.com